
HOUSE
ST. LOUIS, MO --- 2017 --- UIC (URBAN IMPROVEMENT COMPANY)
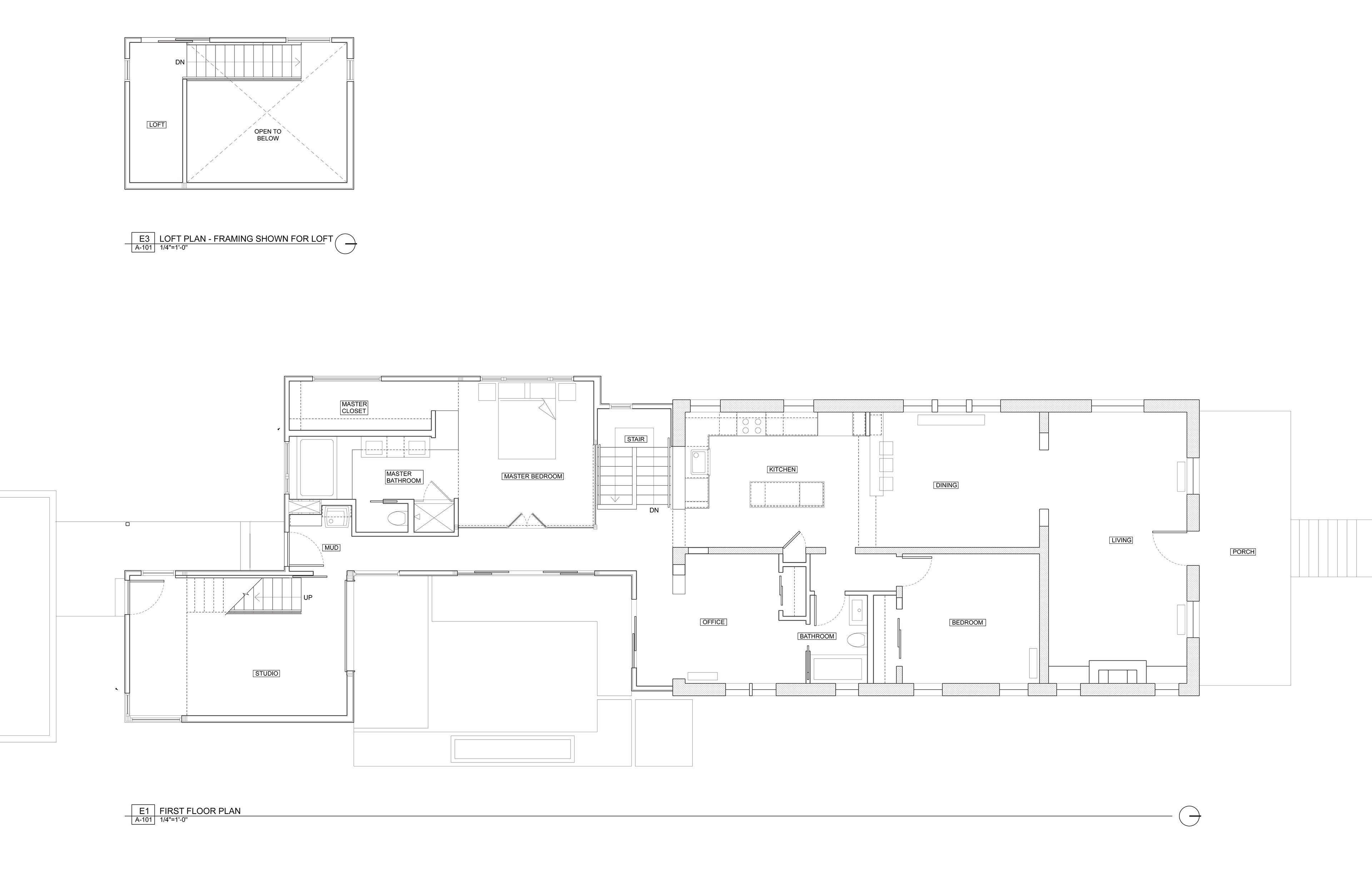
The existing roof line of this mid-century bungalow is extruded into the backyard and pulled apart, creating additional bedrooms in one volume, an artist studio in the other, and a courtyard between.
As a designer at UIC, I played a prominent role in the design of this project, as well as the production of it's 3D model, and drafting the construction document set.









